Wydanie nr 22/04/2026 z dnia 22 kwietnia 2026 roku, ISSN 2392-215X

Nieruchomości
Cena: 219.120,00 zł

Burmistrz Olecka ogłasza kolejny przetarg ustny nieograniczony na sprzedaż trzech nieruchomości gruntowych niezabudowanych przeznaczonych pod zabudowę mieszkaniową jednorodzinną

Wydanie nr 15/05/2025 z dnia 15 maja 2025 roku, ISSN 2392-215X

Cena: 219.120,00 zł
Typ transakcji: Sprzedaż
Przedmiot ogłoszenia: Działka
Miejscowość ogłoszenia: Olecko,
Gmina: Olecko,
Województwo: warminsko-mazurskie

Szczegóły

PGN.6840.6.2025

 

OGŁOSZENIE O PRZETARGU

 

Na podstawie przepisów ustawy z dnia 21 sierpnia 1997 r. o gospodarce nieruchomościami (Dz. U. z 2024 r. poz. 1145 z późn. zm.) oraz na podstawie rozporządzenia Rady Ministrów z dnia 14 września 2004 r. w sprawie sposobu i trybu przeprowadzania przetargów oraz rokowań na zbycie nieruchomości (Dz. U. z 2021 r. poz. 2213) po przetargach przeprowadzonych w dniach 9 stycznia 2025 r., 8 kwietnia 2025 r. (dz. nr geod. 3271) oraz 15 kwietnia 2025 r. (dz. nr geod. 3274 i 3275) zakończonych wynikiem negatywnym

BURMISTRZ OLECKA

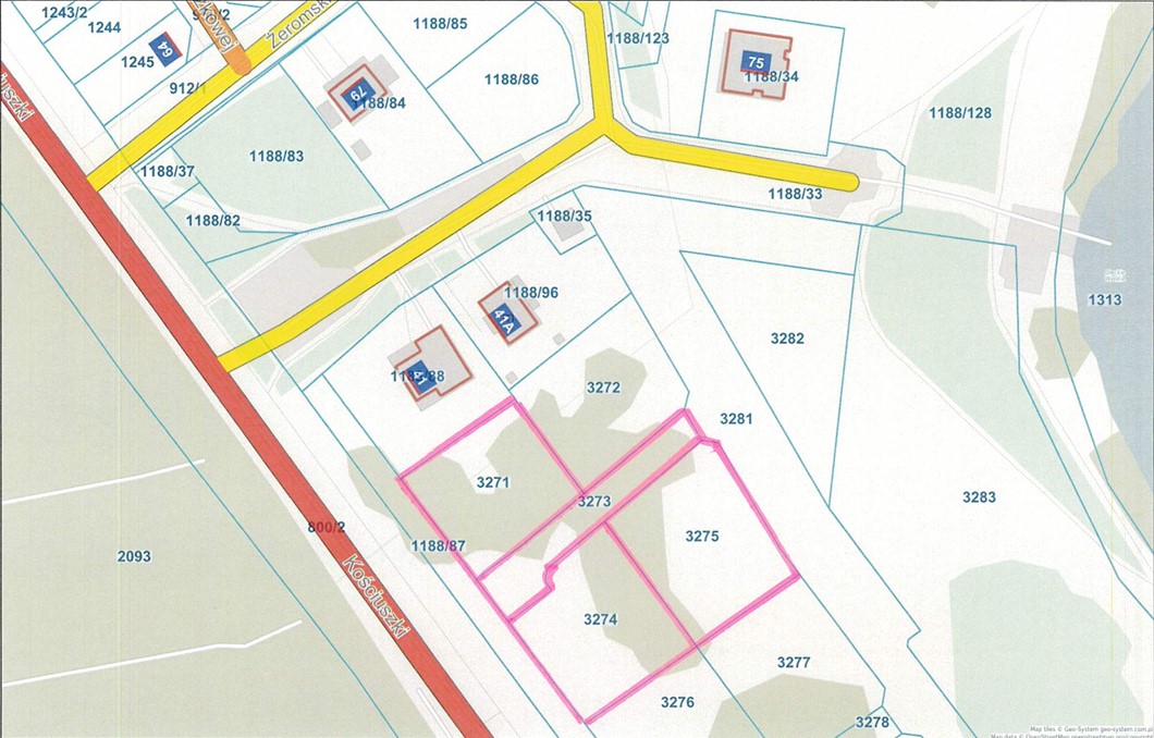
ogłasza kolejny przetarg ustny nieograniczony na sprzedaż trzech nieruchomości gruntowych niezabudowanych przeznaczonych pod zabudowę mieszkaniową jednorodzinną (wszystkie formy zabudowy) położonych w Olecku ul. Kościuszki w obrębie Olecko 2, gmina Olecko - ujawnionych w księdze wieczystej KW OL1C/00002082/3:

  • nr geod. 3271 o powierzchni 0,0913 ha wraz z udziałem w wysokości ¼ w działce nr geod. 3273 o pow. 0,0552 ha stanowiącej drogę wewnętrzną - cena wywoławcza netto 219 120,00 zł, wadium - 22 000,00 zł,

  • nr geod. 3274 o powierzchni 0,1043 ha wraz z udziałem w wysokości ¼ w działce nr geod. 3273 o pow. 0,0552 ha stanowiącej drogę wewnętrzną - cena wywoławcza netto 250 320,00 zł, wadium - 25 000,00 zł,

  • nr geod. 3275 o powierzchni 0,1130 ha wraz z udziałem w wysokości ¼ w działce nr geod. 3273 o pow. 0,0552 ha stanowiącej drogę wewnętrzną - cena wywoławcza netto 271 200,00 zł, wadium - 27 000,00 zł;

 

postąpienie - o wysokości postąpienia decydują uczestnicy przetargu, z tym że postąpienie nie może wynosić mniej niż 1% ceny wywoławczej, z zaokrągleniem w górę do pełnych dziesiątek złotych.

Do ceny netto ustalonej w przetargu zostanie doliczony obowiązujący podatek VAT - 23 %.

Nieruchomości usytuowane są na obszarze oznaczonym w mpzp symbolem 02.MN2, 03.MN2 oraz 05.MN2 - Teren zabudowy mieszkaniowej jednorodzinnej (wszystkie formy zabudowy, tj. budynki mieszkalne jednorodzinne w zabudowie wolnostojącej, bliźniaczej lub szeregowej) oraz 17.KDW - Pas drogowy drogi wewnętrznej. Działki są położone w Olecku przy ul. Kościuszki w obrębie Olecko 2, gmina Olecko, w granicach Obszaru Chronionego Krajobrazu Jezior Oleckich. Przedmiotowe nieruchomości gruntowe posiadają dostęp do drogi wojewódzkiej Nr 655 Olecko-Raczki Suwałki poprzez drogi gminne, tj. ul. Żeromskiego nr geod. 912/1 oraz 1188/33 i 3281 (droga gruntowa).

Działki zlokalizowane są ok. 80-130 m od jeziora Oleckie Wielkie, w odległości ok. 2 km od strefy centralnej miasta. Najbliższe otoczenie nieruchomości stanowi zabudowa mieszkaniowa jednorodzinna. Ukształtowanie terenu korzystne, teren porośnięty roślinnością niską oraz drzewami. Działka nr geod. 3273 stanowiąca wewnętrzną drogę dojazdową jest nieurządzona, porośnięta roślinnością, zlokalizowany jest odcinek sieci wodociągowej i kanalizacyjnej.

Działki posiadają dostęp do infrastruktury technicznej, tj. sieci energetycznej, wodno-kanalizacyjnej, gazowej oraz telekomunikacyjnej. Przyłączenia nieruchomości do poszczególnych urządzeń nabywca nieruchomości dokonuje we własnym zakresie, na warunkach dysponentów sieci. Na ww. terenie nie były wykonywane badania geotechniczne gruntu. Wszelkie prace zwiększające koszty budowy ponosi nabywca.

W przypadku wystąpienia urządzeń podziemnej infrastruktury technicznej, które dotychczas nie zostały zinwentaryzowane, nabywca zobowiązuje się zapewnić do nich nieodpłatny dostęp w sytuacjach koniecznych. Nieruchomości stanowiące przedmiot przetargu nie mają innych obciążeń i zobowiązań.

FORMA NABYCIA GRUNTU - na własność: za cenę osiągniętą w przetargu brutto płatną jednorazowo. Na dzień zawarcia umowy notarialnej winno nastąpić uznanie rachunku bankowego Gminy Olecko ustaloną w przetargu kwotą brutto. Termin podpisania notarialnej umowy sprzedaży zostanie ustalony w ciągu 21 dni od dnia rozstrzygnięcia przetargu. Koszty umowy notarialnej i opłat sądowych obciążają nabywcę.

Wadium należy wpłacać na konto Urzędu Miejskiego w Olecku w PK0 BP S. A. Oddz. w Olecku nr
86 1020 4724 0000 3202 0007 6422
z takim wyprzedzeniem, aby środki pieniężne znalazły się na w/w rachunku bankowym najpóźniej w dniu 20 czerwca 2025 r.

W tytule wpłaty wadium należy wskazać oznaczenie nieruchomości oraz dane wpłacającego, tj. imię i nazwisko uczestnika przetargu, w przypadku małżeństwa - obojga małżonków, w przypadku osoby prawnej - nazwę podmiotu.

Warunkiem udziału w przetargu będzie okazanie komisji przetargowej przed otwarciem przetargu:

  • w przypadku osób fizycznych - dowodów tożsamości, a w przypadku nieobecności współmałżonka stosownego upoważnienia do udziału w przetargu,

  • w przypadku osób prawnych i jednostek organizacyjnych nie posiadających osobowości prawnej - aktualnego wypisu z rejestru, właściwych pełnomocnictw, dowodów tożsamości osób reprezentujących podmiot.

 

Przetarg odbędzie się w dniu 24 czerwca 2025 r. o godz. 10.00 w Urzędzie Miejskim w Olecku, Plac Wolności 3, sala nr 32.

Wadium wpłacone przez uczestnika przetargu, który przetarg wygrał, zalicza się na poczet ceny nabycia nieruchomości. W przypadku nie wygrania przetargu zwrot wadium nastąpi na wskazane przez uczestnika konto nie później niż przed upływem 3 dni od zamknięcia przetargu. Wadium ulega przepadkowi w razie uchylenia się uczestnika, który przetarg wygra od zawarcia umowy. Przetarg może być odwołany z ważnych powodów. Informacje o przetargu można uzyskać w Urzędzie Miejskim w Olecku (pokój nr 21, tel. 87/307 03 04).

 

Ogłoszenie publikowane jest na tablicach ogłoszeń tut. urzędu, gminnej stronie internetowej https://www.olecko.pl/ oraz Biuletynie Informacji Publicznej – https://bip.olecko.pl/

 

Olecko, dnia 15 maja 2025 r.

Lokalizacja

Nieruchomości

Proponowane dla Ciebie

Syndyk sprzeda udział w nieruchomości niezabudowan...

Powierzchnia: 4572.00

Cena: 22.770,00

Data: 21.04.2026

Sprzedaż
Działka

Pewel Wielka, slaskie

Syndyk sprzeda lokal mieszkalny w Cieszynie

Powierzchnia: 70.50

Cena: 395.000,00

Data: 20.04.2026

Sprzedaż
Mieszkanie

Cieszyn, slaskie

Syndyk masy upadłości oferuje na sprzedaż obiekt r...

Powierzchnia: 1970.00

Cena: 2.155.000,00

Data: 20.04.2026

Sprzedaż
Obiekt użytkowy

Świerklany, slaskie

Syndyk oferuje do sprzedaży udział w wysokości 1/2...

Powierzchnia: 3591.00

Cena: 3.244,43

Data: 20.04.2026

Sprzedaż
Działka

Błądzim, kujawsko-pomorskie

Syndyk sprzeda wyposażenie restauracji oraz udział...

Data: 19.04.2026

Sprzedaż
Obiekt użytkowy

Ustroń, slaskie

Syndyk masy upadłości sprzeda udział w nieruchomoś...

Powierzchnia: 63200.00

Cena: 18.375,00

Data: 14.04.2026

Sprzedaż
Działka

Barany, kujawsko-pomorskie

Syndyk sprzeda nieruchomość niezabudowaną położoną...

Powierzchnia: 1000.00

Cena: 165.300,00

Data: 13.04.2026

Sprzedaż
Działka

Zieleniec, lubuskie

Syndyk sprzeda nieruchomość zabudowaną położoną w...

Powierzchnia: 119.00

Cena: 652.175,00

Data: 13.04.2026

Sprzedaż
Dom

Gorzów Wielkopolski, lubuskie

IV przetarg na sprzedaż prawa własności nieruchomo...

Data: 12.04.2026

Sprzedaż
Działka

Brzozowiec, lubuskie

Sprzedaż działki rolnej nr 687 w miejscowości Dług...

Powierzchnia: 3821.00

Cena: 27.000,00

Data: 12.04.2026

Sprzedaż
Działka

Długie, podkarpackie

Syndyk masy upadłości sprzeda nieruchomość niezabu...

Powierzchnia: 1507.00

Cena: 3.300,00

Data: 12.04.2026

Sprzedaż
Działka

Poręby, podkarpackie

Prawo własności nieruchomości lokalowej mieszkalne...

Powierzchnia: 52.30

Cena: 348.800,00

Data: 10.04.2026

Sprzedaż
Mieszkanie

Dziwnów, zachodniopomorskie

Syndyk oferuje do sprzedaży z wolnej ręki w trybie...

Powierzchnia: 456.00

Cena: 22.330,00

Data: 10.04.2026

Sprzedaż
Działka

Osowiec, opolskie

Syndyk sprzeda mieszkanie

Powierzchnia: 47.00

Cena: 219.300,00

Data: 10.04.2026

Sprzedaż
Mieszkanie

Gliwice, slaskie

3/4 udziału spółdzielczego własnościowego prawa do...

Powierzchnia: 36.70

Cena: 148.360,00

Data: 10.04.2026

Sprzedaż
Mieszkanie

Częstochowa, slaskie